VIZUALIZACE: Nový stadion Bohemians dostal podobu, práce na Ďolíčku začnou už letos

Autoři , | Foto Bohemians 1905

Fotbalový klub Bohemians 1905 představil novou podobu modernizovaného Ďolíčku. Vršovický stadion bude uzavřený a v tradičních zeleno-bílých barvách. Nově vyroste jižní tribuna směrem k tramvajové zastávce a unikátní bude "plochá" východní tribuna, která bude svým řešením připomínat stadion La Bombonera argentinského klubu Boca Juniors.

Bohemians v listopadu získali od města dlouhodobý pronájem stadionu na dalších 60 let. Mohou se tak pustit do potřebných úprav Ďolíčku, který přestává stačit současným požadavkům. Stadion bude po rekonstrukci splňovat kategorii 4 UEFA pro pořádání mezinárodních zápasů. Mimo utkání bude sloužit veřejnosti.

„Chceme, aby to bylo místo k setkávání, pro kulturní a sportovní akce. Budou tam prostory pro rekreační sporty, multimediální sály, nějaká občanská vybavenost," přiblížil ředitel klubu Darek Jakubowicz návrh architekta Arnošta Navrátila, jenž v minulém století projektoval současný Ďolíček. „Pan architekt chtěl vytvořit skvost Vršovic, na který se budou jezdit dívat fanoušci i z celého světa. S jeho osobou se uzavře krásný příběh," přidal Jakubowicz.

Kapacita Ďolíčku vzroste na více než osm tisíc míst. Na hlavní tribuně vzniknou nové VIP prostory a rekonstrukcí projde i klubové zázemí a kabiny. Severní tribuna, kde sídlí "kotel" nejvěrnějších příznivců, bude mít tzv. safe standing místa na stání a zázemí pro fanoušky.

Rekonstrukce Ďolíčku vyjde až na 350 milionů, začít by měla za rok

Prvoligový fotbalový klub Bohemians 1905 by chtěl na konci příštího roku začít s plánovanou modernizací stadionu. Rekonstrukce Ďolíčku by měla vyjít na 300 až 350 milionů korun, odhadl na tiskové konferenci předseda představenstva Pražanů Dariusz...

„Můžeme říct, že to bude světový unikát"

Výjimečná bude východní tribuna, která bude mít pět pater, v každém ale budou maximálně dvě řady sedaček. Přemístí se na ni prostory pro média včetně hlavní televizní kamery. „Můžeme říct, že to bude světový unikát. Padlo tady to přirovnání k La Bomboneře. Bude ve stejné výšce jako zbytek stadionu, ale v nejširším bodě bude mít jen čtyři a půl metru. Vzniknou tak docela lukrativní místa," prozradil Darek Jakubowicz.

Zatímco východní tribuna bude plochá, na protější straně se bude tvar stadionu vlnit podél protékající říčky Botiče. Tzv. náměstíčko, kde je nyní občerstvení pro fanoušky, bude volně přístupné bez oplocení. Hrací plocha se posune o tři metry směrem k severní tribuně, aby vznikl prostor pro výstavbu jižní tribuny.

Pan architekt umí překvapit, opravdu to je plejáda nápadů a variant. Pro něj to je životní dílo, chce tím zakončit bohatou kariéru. S jiným stadionem to srovnatelné není, naopak věřím, že v budoucnu se někdo bude srovnávat s námi," řekl předseda představenstva Dariusz Jakubowicz.

„Pan architekt už několikrát říkal, že je to jeden z nejsložitějších projektů, které dělal. Vybudovat stadion na zelené louce je mnohem lehčí. My se museli se potýkat se spoustou překážek, se všemi si dokázal poradit," uvedl jeho syn.

Darek Jakubowicz, ředitel klubu

Rekonstruovat se bude na etapy

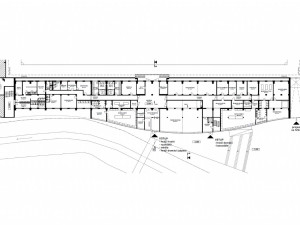
Rekonstrukci provedou na etapy, začne se na jihu u Vršovické ulice. Tam bude tribuna se zázemím pro diváky a zároveň s hlavním vstupem do stadionu. Ve spodní části budou toalety, občerstvení a fanshop s bezbariérovým přístupem. 

Západní tribuna poskytne zázemí a šatny pro Bohemians i hostující tým a rozhodčí. Za hlavní tribunou postaví administrativní budovu, kde budou kanceláře a administrativa. 

Severní sektor bude mít dva přístupy a koridor se stánky s občerstvením. Pod tribunou budou sklady a technická správa.

Podle vedení týmu byl projekt východní tribuny nejsložitější. Maximální hloubka pro stavbu budovy je tam totiž jen 4 a půl metru. „Bez nadsázky tak můžeme hovořit o tom, že ve Vršovicích vyroste světový unikát svého druhu. Přístupy do východní tribuny budou orientované od severní i jižní tribuny. Po celkovém dokončení rekonstrukce je plánováno přesunutí televizních pozic právě na východ, aby TV záběry v Ďolíčku mířily směrem k hlavní tribuně," sdělil v tiskové zprávě  ředitel komunikace klubu Petr Koukal.

Na stavbu je připravena polovina financí

Stadion bude zastřešen, část ale bude průhledná, aby na trávník mohlo svítit slunce. Odstraní stožáry, nahradí je světelná rampa po obvodu střechy. Ještě letos stoku, bohuže ale budou muset zbourat zeď, na které je mural. 

Majitelé Bohemians na konci roku odhadovali náklady na 300 až 350 milionů korun. Rekonstrukce zřejmě bude stát více. „Je to dražší, ale ne nějak katastrofálně," podotkl Dariusz Jakubowicz. Jako rodina máme připravené prostředky na 50 procent rekonstrukce. Spoléháme i na to, že se nám podaří nalézt další partnerství. Počítáme i s dalšími příjmy. Ale kdybych měl čekat, až budu mít na všechno peníze, tak by firmy, které jsem vybudoval, ani nestály," doplnil předseda představenstva klubu.

První práce by měly být zahájeny během léta, v ideálním případě bude projekt dokončený do pěti let. "Klokani" budou hrát po celou dobu rekonstrukce na svém stadionu.

Ohodnoť článek

Chceš mít přehled o tom, co se děje kolem tebe?

Štítky fotbal, první, Bohemians 1905, stadion, Ďolíček, rekonstrukce

Komentáře

Miroslav Valčík

Miroslav Valčík

Skvělé, super, konečně ! Vald

Středa, 14. května 2025, 22:59Odpovědět

Přihlášení uživatele

Přihlásit se pomocí GoogleZaložením účtu souhlasím s obchodními podmínkami, etickým
kodexem
a rozumím zpracování osobních údajů dle poučení.

Zapomenuté heslo

Na zadanou e-mailovou adresu bude zaslán e-mail s odkazem na změnu hesla.

Pošli tip na kulturní akci

Publikace zaslané kulturní či sportovní akce není garantována a vždy o publikaci rozhoduje redakce.
Zasláním tipu do redakce zároveň deklaruji, že mám svolení s užitím fotografie.

* Soubor není povinné přikládat.
Napište první písmeno abecedy.

Odesláním formuláře souhlasím s obchodními podmínkami, etickým kodexem a rozumím zpracování osobních údajů dle poučení.

O jaký newsletter máte zájem?

Vyber jednu, nebo více možností a my se postaráme o to, aby do emailu přišly jen zprávy, které tě zajímají.

Napište první písmeno abecedy.